
Rhône Alpes - Savoie - Les Saisies (73620)










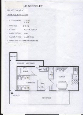
Couloir privé (chaussures de ski au chaud.. )casier à skis extérieur fermé à clef. Accès de plein pied, grande terrasse en bois ainsi qu'une vue dégagée au calme. Toutes les pièces donnent plein sud. Appartement super bien équipé et tout confort. Produits d'entretien fournis. Wi-Fi. 35 euros en sus pour le chauffage et l'électricité.
Départ/retour à ski (légette bleue). Commerces à proximité (80 mètres).
Adresse: 77 chemin du Soleil (73620)
LOCATION POUR UNE SEMAINE MINIMUM SAMEDI à SAMEDI.Noël, nouvel an et vacances scolaires février déjà loué.
Pour une réponse rapide et directe, merci de communiquer par mail vdejamblinne@gmail.com ou 0041786607916. EN CAS DE NON REPONSE C'EST UN PROBLEME TECHNIQUE DE COMMUNICATION. JE REPONDS TOUJOURS .
Infos propriétaire
Mme Valérie de Jamblinne
Tél : +41(0)227892729
Tél : +41786607916
Contacter par e-mailGérez votre annonce
Modifier cette annonce
Supprimer cette annonce
Remonter en tête de liste
Mettre PromotionEnvoyer à un ami
GO
Appartement
Appartement
Appartement
Appartement
Appartement
Appartement
Appartement
Appartement
Appartement
Appartement
Appartement
Appartement
Appartement
Appartement
Réseaux sociaux
Retrouvez Location-saisies.fr sur Facebook
Ajoutez en favoris
Ajoutez Location-saisies.fr dans votre liste de favoris